Jumlah anggota keluarga yang cukup banyak mengharuskan kamu punya banyak kamar di rumah. Desain rumah 6×9 3 kamar tidur sangat cocok untuk keluarga yang punya 2 hingga 4 anak.
Salah satu kamar tidur merupakan master bedroom untuk ayah dan ibu. Sementara 2 kamar lainnya untuk anak-anak. Masing-masing kamar tidur anak dapat dihuni oleh 1 hingga 2 orang. Seperti apakah contoh desainnya? Simak beberapa rekomendasi berikut:
10 Desain Rumah 6×9 Kamar Tidur Modern
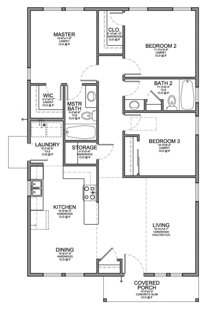
1. Cukup Satu Lantai

Kamu tak perlu rumah dengan dua lantai untuk memiliki 3 kamar tidur. Perhatikan saja contoh desain di atas.
Agar rumah tidak tampak sempit, area ruang tamu dan ruang keluarga sengaja dibuat menyatu. Jika kamu sangat jarang menerima tamu, seluruh area ini dijadikan sebagai ruang keluarga.
Kamar utama punya ukuran lebih besar dibanding dua kamar lain. Selain itu, di dalamnya juga terdapat kamar mandi.
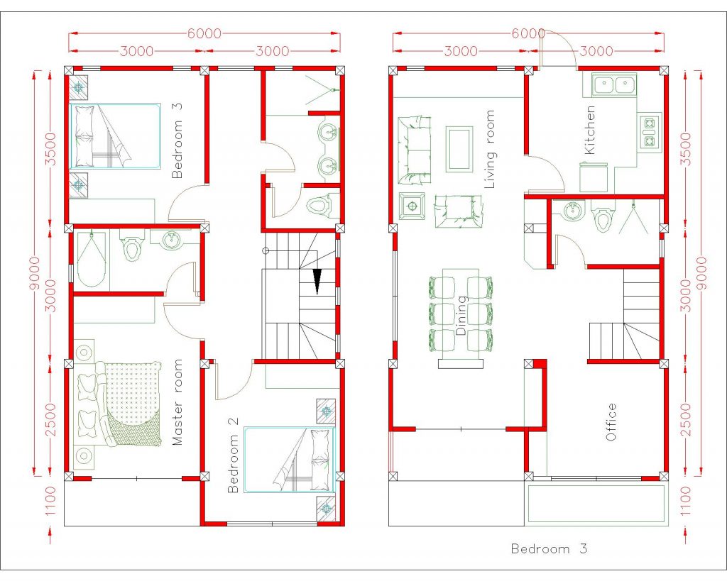
2. Ruang Tamu Terpisah

Sering menerima tamu dan ingin privasi keluargamu terjaga? Coba saja ikuti gambar rumah 6×9 3 kamar tidur di atas. Ruang tamu sengaja dibuat terpisah agar orang yang berkunjung tidak dapat melihat aktivitas semua penghuni rumah.
Begitu masuk ke dalam, kamu akan langsung masuk ke area dapur. Meski begitu, masih ada cukup ruang untuk dijadikan sebagai area makan atau ruang keluarga.
3. Taman di Depan dan Belakang Rumah

Rumah tanpa taman akan terasa begitu gersang. Oleh sebab itu, kamu perlu menambahkan area terbuka di depan atau belakang rumah.
Contoh desain rumah 6×9 3 kamar tidur di atas punya car port untuk area parkir mobil. Sementara itu, di bagian depan sisi kiri terdapat teras dan taman.
Untuk menambah sirkulasi udara dan cahaya alami, di bagian belakang rumah dapat ditambah dengan taman. Tak perlu terlalu besar, cukup 1 sampai 2 meter saja lebarnya.
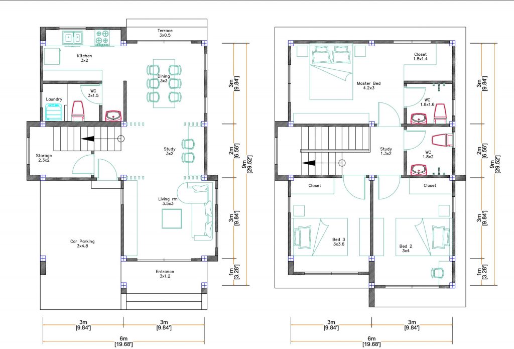
4. Lebih Leluasa dengan Dua Lantai

Ada banyak anggota keluarga di dalam rumah tentu membutuhkan ruang gerak yang lebih luas. Hal ini dapat disiasati dengan membuat rumah dua lantai.
Lantai 1 dibuat khusus untuk ruangan fungsional seperti ruang keluarga, dapur, ruang makan, dan lainnya. Sementara lantai 2 dibuat khusus sebagai area istirahat.
Dengan memisahkan ruangan seperti ini, pergerakan seluruh anggota keluarga menjadi lebih leluasa.
5. Semua Kamar di Lantai Atas

Desain rumah 6×9 3 kamar tidur ini kurang lebih sama seperti sebelumnya, yaitu meletakkan semua ruang tidur di lantai atas.
Untuk menghemat ruang, kamar utama di rumah ini tidak dilengkapi dengan kamar mandi di dalamnya. Sebagai bonusnya, kamu bisa punya meja kerja atau belajar yang lebih luas.
Kamar mandinya sendiri hanya ada satu yang posisinya di tengah ruang. Pemilihan lokasi kamar mandi di bagian tengah bertujuan agar mudah dijangkau dari semua kamar.
6. Master Bedroom Super Nyaman

Sepertiga area rumah ini dihabiskan oleh kamar utama atau master bedroom. Kamar ini sengaja dibuat sangat nyaman dengan fasilitas lengkap. Di dalamnya terdapat walk in closet, wastafel, dan bathtub untuk mandi dan berendam.
7. Kamar Tidur dengan Balkon

Dua kamar tidur di rumah ini mendapatkan akses langsung ke bagian balkon. Dengan begitu, penghuni kamar punya space lebih untuk beraktivitas.
Sebaiknya, kamu tidak memberikan kamar dengan balkon ini untuk anak-anak. Pasalnya, balkon dapat menjadi area yang berbahaya untuk mereka.
8. Lantai Dasar yang Lega

Banyak cara untuk menyiasati rumah yang tidak begitu luas. Salah satunya adalah tidak menambahkan sekat antar ruangan. Artinya setiap ruangan terhubung satu sama lain dan menimbulkan kesan luas.
Lantai dasar pada gambar rumah 6×9 3 kamar tidur di atas adalah salah satu contohnya. Begitu pintu utama dibuka, kamu akan langsung dihadapkan dengan ruang makan dan ruang keluarga. Ruangan ini dibiarkan terbuka dari dinding depan hingga dinding belakang.
9. Memaksimalkan Seluruh Lahan

Rumah satu lantai ini memiliki area yang cukup terbuka di bagian depan. Agar rumah tidak terkesan sempit, ruang keluarga, ruang makan, dapur tidak dipisahkan oleh pembatas apa pun.
Sekat-sekat ruangan baru dapat ditemukan di area belakang, yaitu pada area kamar-kamar tidur. Untuk kamar tidur sendiri memang harus diberi sekat karena bagian ini masuk ke area privat.
Denah rumah ini benar-benar memaksimalkan seluruh lahan untuk dijadikan ruangan yang fungsional. Dengan begitu, kamu bisa memiliki rumah dengan desain menarik walaupun lahannya tidak terlalu besar.
10. Rumah Modern dengan Deck

Buat rumah mungilmu semakin nyaman dengan menambahkan deck di bagian depannya. Deck merupakan teras kayu yang dibangun di atas tanah dan terhubung langsung dengan bangunan utama.
Desain rumah 6×9 3 kamar tidur di atas memiliki deck alih-alih teras biasa untuk menciptakan nuansa rumah yang unik dan tidak biasa. Bagaimana? Pastinya kamu sangat menyukai desain rumah satu ini, kan?
Baca Juga :
Setelah melihat inspirasi desain rumah 6×9 3 kamar tidur di atas, kamu dapat menentukan pilihan. Jika punya budget lebih, rumah dengan dua lantai lebih disarankan supaya pergerakan seluruh penghuni rumah lebih bebas.

