Rumah-rumah berukuran mungil semakin banyak dijumpai seiring melambungnya harga tanah. Salah satu contoh ukuran rumah yang cukup banyak ditemukan adalah 6×10 meter. Memilih desain rumah 6×10 memang cukup tricky agar semua ruangan fungsional tetap ada.
Kalau kamu berencana membangun rumah dengan ukuran 6×10 meter, di bawah ini akan ada banyak pilihan desain yang dapat menginspirasi. Yuk, lihat pilihan desainnya!
10 Denah Desain Rumah 6×10 Minimalis Terbaik
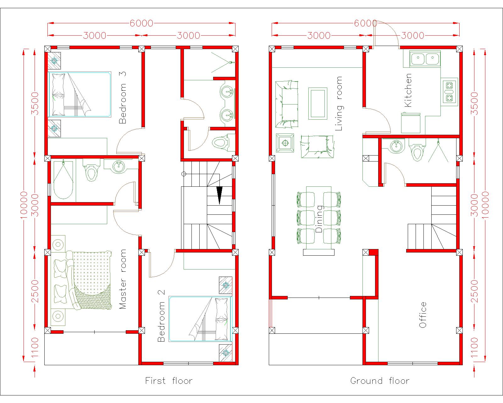
1. Denah Rumah 6×10 Dua Lantai

Salah satu cara untuk memaksimalkan ukuran lahan yang sempit adalah membuat rumah dengan dua lantai. Dengan begitu, kamu bisa punya lebih banyak ruangan seperti gambar di atas.
Seluruh kamar tidur sengaja ditempatkan di lantai dua agar ruang istirahat tersebut lebih tenang. Sementara di lantai satu ditujukan untuk area produktif. Bahkan kamu dapat membangun sebuah ruang kerja sendiri agar bisa lebih fokus.
Ruang makan dan ruang keluarga sengaja dibuat menyatu tanpa ada sekat. Hal ini bertujuan agar rumah tampak lebih luas.
2. Rumah Mungil dengan 3 Kamar Tidur

Jika punya banyak anggota keluarga, desain rumah yang satu ini cocok untuk kamu. Meski hanya terdiri dari satu lantai, kamu tetap bisa membuat rumah dengan 3 kamar tidur di dalamnya. Namun, ada konsekuensi yang harus kamu terima.
Kamu harus mengorbankan keberadaan ruang makan. Solusinya, kamu dapat membuat dapur dengan meja bar. Tempat tersebut bisa dijadikan sebagai pengganti meja makan.
Ruang tamu dan ruang keluarga masih tetap ada. Keduanya terpisah namun tidak ada sekat permanen yang memisahkan. Lagi-lagi cara ini dilakukan untuk menciptakan kesan lega di dalam ruangan.
3. Taman di Depan dan Belakang

Sebagian orang lebih menyukai rumah yang memiliki taman. Gambar desain rumah 6×10 di atas sangat cocok untuk kamu yang suka memiliki taman di rumah.
Taman berukuran cukup besar yang ada di depan rumah menciptakan kesan yang menyejukkan. Di bagian belakang juga ada taman yang ukurannya lebih kecil namun memanjang. Area ini terhubung langsung dengan dapur.
Keberadaan taman di bagian belakang sangat membantu sirkulasi udara sehingga dapur tidak terasa pengap dan panas.
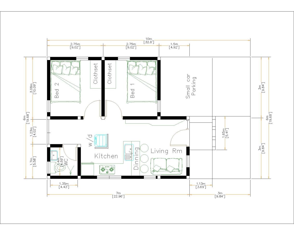
4. Dengan Dua Kamar

Hanya punya dua kamar membuat rumah berukuran 6 x 10 menjadi lebih fungsional. Pasalnya, kamu dapat memiliki dapur yang cukup luas, ruang tamu, serta ruang keluarga yang terpisah. Ukuran kamar yang kamu dapatkan juga cukup besar.
Karena kamar tidur hanya ada dua dan ukuran rumah tidak begitu besar, kamu cukup membangun satu buah kamar mandi. Letaknya ada di bagian tengah rumah agar mudah dijangkau dari mana saja.
Di bagian depan, kamu masih punya area terbuka yang bisa dimanfaatkan sebagai area parkir kendaraan. Ada pula taman kecil sebagai tempat kamu mengoleksi tanaman hias.
5. Rumah Mungil dengan Atap Dak

Saat ini banyak rumah yang menggunakan atap dak atau cor agar dimanfaatkan menjadi berbagai hal. Misalnya untuk area menjemur pakaian, area bersantai, maupun membuat taman minimalis di rooftop.
Gambar di atas merupakan contoh rumah dengan atap dak. Di area dapur terdapat jendela atau lubang kaca untuk sumber pencahayaan ruangan. Untuk bagian ini, kamu harus menggunakan kaca dengan ketebalan tertentu agar tidak mudah pecah.
6. Lengkap dengan Kamar Tamu

Satu lagi inspirasi desain rumah 6×10 meter dengan dua lantai. Desain yang satu ini lebih cocok untuk kamu yang sering dikunjungi oleh keluarga atau kerabat. Pasalnya, rumah ini punya 4 buah kamar tidur dan salah satunya merupakan kamar tamu.
Meski menempati lahan yang tidak begitu luas, rumah ini memiliki taman di bagian depan dan belakang rumah. Taman di belakang rumah ini tidak tertutup atap karena sengaja difungsikan untuk sirkulasi udara dan pencahayaan alami.
7. Rumah dengan Carport Luas

Kamu punya dua buah mobil? Jika ya, tentu kamu akan membutuhkan lahan parkir atau car port yang luas di rumah. Oleh karena itu, kamu dapat membuat rumah dengan inspirasi desain di atas.
Di bagian depan terdapat car port yang lebarnya hampir memenuhi seluruh area rumah. Sebagai pemanis, di sisi kanan terdapat taman berukuran mungil.
8. Rumah 6×12 dengan Dapur Terbuka

Rumah ini memiliki dapur yang terpisah dari area utama. Dengan begitu, area di dalam rumah akan terkesan lebih luas.
Sirkulasi udara di dapur ketika memasak pun akan lebih bagus karena letaknya ada di luar ruangan. Halaman belakang yang terhubung langsung dengan dapur dapat kamu manfaatkan sebagai area taman atau tempat bersantai bersama keluarga.
Tak banyak ruangan di rumah ini. Oleh karena itu, kamu bisa punya dua kamar tidur dengan ukuran 2,5 x 3,2 meter. Cukup luas untuk rumah mungil, bukan?
Baca Juga :
9. Rumah Sudut yang Unik

Beruntunglah kamu apabila mendapatkan lahan di bagian sudut kompleks perumahan. Biasanya, area ini memiliki tambahan tanah di salah satu sisi. Tanah yang posisinya di sudut dapat kamu manfaatkan untuk membuat desain rumah 6×10 seperti di atas.
Area rumah hanya ada di bagian sudut kiri belakang. Di bagian depan rumah ada carport. Sementara di bagian kanan membentang halaman yang cukup luas.
10. Rumah Mungil yang Nyaman

Desain rumah 6×10 di atas hanya memanfaatkan setengah lahan. Setengah lainnya dijadikan sebagai area parkir atau garasi mobil. Meski begitu, kamu tetap bisa punya 2 kamar tidur ukuran besar di lantai 2.
Sementara ruangan fungsional lain ada di lantai 1. Jika kamu punya asisten rumah tangga, di lantai 1 bagian belakang juga terdapat kamar khusus untuk ART.
Memaksimalkan area yang tidak begitu luas bukanlah perkara sulit. Dengan inspirasi desain rumah 6×10 di atas, kamu bisa membangun hunian yang nyaman dan fungsional di atas lahan yang kecil.

