Memiliki tempat tinggal dengan desain rumah 10×10 bisa dibilang cukup luas dan lapang. Berarti ukuran tersebut memiliki bentuk persegi yang membuat terlihat presisi jika dilihat dari mana saja.
Selain itu, dengan ukuran 10×10 maka kamu bebas mendesain sesuai dengan keinginan kamu. Taman, carport untuk dua mobil, dan ruangan-ruangan di dalamnya bisa kamu desain dengan leluasa.
Desain Rumah 10×10 Minimalis
1. Desain Fasad Rumah 10×10

Bagian depan adalah yang sangat penting untuk diperhatikan pertama kali. Dengan ukuran 10×10 maka kamu bisa membuat secara sederhana namun terlihat elegan dan modern minimalis.
Berikan warna netral dengan dipadukan bahan alam seperti bebatuan yang warnanya serasi dengan tembok. Di depan rumah pastinya harus terdapat taman kecil dan carport yang cukup luas. Tak ketinggalan desain minimalis ini harus terdapat jendela yang panjang dan tinggi.
2. Desain Ruang Tamu

Memiliki ruang tamu dengan nuansa warm akan membuat nuansa rumah menjadi sangat nyaman dan hangat. Furniture berwarna coklat kayu serta lampu kuning membuatnya terkesan mewah dan berkesan di malam hari.
Jangan biarkan tembok kosong karena kamu bisa meletakkan beberapa lukisan dan rak sehingga tidak terlihat monoton dan membosankan.
3. Desain Kitchen Bar

Rumah desain gambar persegi ini bisa kamu buatkan seperti kitchen bar yang menyambung dengan ruang tamu. Selain terkesan sangat modern, rumah juga akan terlihat luas dan lapang karena tidak ada sekat antara dapur dan ruang tamu.
Desain minimalis akan terlihat seperti café dengan desain yang sejalan seperti ruang tamu. Jika ingin menggunakan warna hangat atau warm tone maka bisa menggunakan kitchen set berbahan marmer cream atau kayu coklat muda.
4. Desain Working Space

Jika kamu adalah seorang pekerja keras atau pelajar yang suka belajar maka membuat working space adalah salah satu tempat yang harus dimiliki di rumah cukup dengan ukuran 2×3 meter saja.
Desain dengan memberikan meja kayu yang panjang, beberapa lemari untuk menyimpan buku dan peralatan bekerja, serta hadapkan pada pemandangan luar rumah atau taman. Pilih warna furniture putih atau abu-abu agar terkesan bersih dan dan cerah.
5. Desain Ruang Keluarga

Pada ruang keluarga bisa memilih warna yang netral dan lampu yang hangat seperti LED dan juga tempatkan sofa, bantal, selimut yang nyaman untuk menonton TV dan berbincang.
Buatlah suasana menjadi lebih hidup dengan beberapa rak yang bisa digunakan untuk meletakkan interior dan lampu berdiri.
Denah Rumah 10×10 Minimalis
1. Denah Satu Lantai

Meskipun tidak terlalu luas, namun desain rumah 10×10 juga cukup digunakan untuk satu lantai saja. Beberapa ruangan juga bisa didesain seluas mungkin.
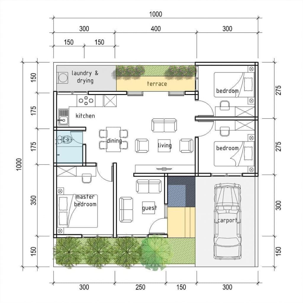
Untuk denah di atas maka bisa dilihat 3 kamar tidur, 1 kamar mandi, ruang tamu, dapur, ruang makan, ruang keluarga, ruang laundry, teras belakang, carport, serta taman kecil depan rumah.
Rumah bisa tampak luas dan lapang jika ruang tengah dijadikan satu seperti dapur, ruang makan, ruang keluarga tanpa sekat.
2. Denah 3 Taman

Jika kamu suka dengan rumah yang memiliki banyak taman maka bisa membuatnya di bagian depan, samping, dan belakang. Jika terdapat banyak taman maka halaman akan terasa luas.
Oleh karena itu, beberapa ruangan di dalam rumah bisa dibilang kurang besar. Untuk denah desain rumah 10×10 3 taman ini maka terdapat 2 kamar tidur, 1 kamar mandi, ruang tamu, ruang keluarga, dapur dan tempat makan, laundry, serta carport.
3. Denah 2 Lantai

Jika memiliki anggota keluarga yang banyak maka bisa menggunakan desain rumah 2 lantai agar lebih maksimal. Selain itu, banyak ruangan seperti garasi dan carport yang lebih luas bahkan bisa untuk dua mobil.
Untuk ruangan yang bisa didapatkan dengan desain dua lantai adalah di lantai satu terdapat 2 kamar tidur, 1 kamar mandi, ruang keluarga, dapur, ruang makan, ruang tamu, gudang, garasi, carport, dan taman. Untuk lantai dua terdapat 3 kamar tidur, 3 kamar mandi, ruang keluarga, laundry, dan balkon.
4. Denah Ruang Keluarga Luas

Contoh denah di atas sangat mengedepankan ruang keluarga yang menjadi ruangan terluas. Untuk denah ini memiliki ruangan 3 kamar tidur, 1 kamar mandi, ruang tamu, ruang makan, ruang keluarga, dapur, ruang laundry, dan garasi.
Sederhana namun membuat rumah luas dan lapang saat berada di ruang tengah karena tidak ada sekat antara ruang keluarga, ruang makan, dan dapur.
5. Denah 2 Kamar Tidur

Ini bisa digunakan sebagai rekomendasi bagi yang suka dengan ruangan luas dan sedikit ruangan pada rumahnya. Desain rumah 10×10 yang memiliki 2 kamar tidur saja pastinya bisa memanfaatkan space lain untuk ruangan lain.
Namun, di sini kamu akan mendapatkan 2 kamar tidur, 1 kamar mandi, ruang tamu, ruang keluarga, dapur, ruang laundry, garasi, dan teras. Yang disekat hanya kamar mandi, kamar tidur, dan laundry. Partisi hanya untuk sekat ruang tamu sehingga di dalamnya akan tampak luas dan menyenangkan.
Baca Juga :
Rumah dengan desain tertentu merupakan salah satu ciri khas yang bisa kamu tonjolkan seperti kepribadianmu.

