Bangunan seluas 80 m2 alias type 80 cocok ditinggali oleh keluarga dengan 2 anak lebih. Denah rumah type 80 terbaru dan terbaik ini bisa kamu jadikan referensi saat akan membuat hunian.
Tata letak ruangan yang berbeda tiap denah akan memberimu inspirasi untuk menentukan seperti apa penataan yang cocok untuk rumah sendiri.
Terlebih, rumah tipe 80 termasuk luas sehingga fungsi ruang perlu dimaksimalkan. Kalau tata letaknya semrawut, rumah yang gede sekalipun bisa terlihat sumpek, lo.
7 Contoh Denah Rumah Type 80 Terbaik
Seperti apa sih floor plans terbaik untuk bangunan rumah tipe 80? Berikut ulasan 7 design yang recommended untuk dicontek:
1. Rumah Type 80 Minimalis

Kesederhanaan tata ruang dan minimnya sekat antar ruang termasuk karakteristik utama dari desain rumah yang minimalis.
Konsep minimalis akan membuat rumah tipe 80 kamu lebih lapang. Jika ingin ruang gerak yang lebih leluasa, tidak ada salahnya membangun rumah tingkat 1.
Lantai bawah cukup diisi dengan 1 kamar, toilet, dapur, ruang tamu dan area serbaguna. Sedangkan lantai atas diisi dengan 2 kamar, toilet dan ruang keluarga. Pilihan tepat bagi yang ingin memusatkan aktivitas khusus keluarga inti di lantai atas.
Desain rumah type 80 ini menawarkan sisa lahan yang luas untuk dijadikan garasi mobil dan halaman depan yang terhubung langsung dengan halaman belakang.
2. Rumah Type 80 dengan 3 Kamar Tidur

Denah rumah type 80 yang menempati lahan seluas 150 m2 sangat ideal untuk dibuat 3 kamar tidur. Kamar tidur utama yang ditempati oleh orang tua memiliki ukuran paling luas dan dilengkapi dengan toilet en suite.
Sedangkan 2 kamar lainnya yang berukuran lebih kecil cocok ditempati oleh anak-anak.
Ruang lain yang dimiliki oleh desain rumah tersebut antara lain ruang tamu dan ruang keluarga yang terhubung tanpa pembatas, dapur yang terpisah, kamar mandi umum, garasi dan 2 teras.
Halaman di bagian depan dan belakang rumah bisa ditanami berbagai macam tumbuhan hijau dan bunga. Selain menjaga kualitas udara, tampilan rumah kamu akan terlihat lebih estetik.
3. Rumah Type 80 dengan 2 Kamar Tidur

Tidak ada salahnya keluarga kecil tinggal di rumah tipe 80, kok. Justru hunian akan memiliki banyak ruang untuk beraktivitas dengan lebih leluasa.
Kamu bisa meniru denah hunian tipe 80 plus 2 kamar tidur yang satu ini. Luas kamarnya dibuat sama dan ruang antara dua kamar tersebut dimanfaatkan sebagai kamar mandi sehingga privasinya lebih terasa.
Desain rumah ini menerapkan konsep open space sehingga ruangan bagian tengah sangat lapang.
Antara dapur, ruang makan dan ruang keluarga sama sekali tidak dibatasi dinding. Sedangkan antara ruang keluarga dan ruang tamu hanya memakai lemari TV sebagai partisi.
4. Rumah Type 80 2 Lantai

Keuntungan memiliki rumah tingkat adalah banyak ruang yang bisa dibuat sekalipun lahannya sempit. Denah rumah type 80 2 lantai ini recommended untuk ditiru jika keluarga besarmu membutuhkan ruang gerak yang lebih bebas.
Tata letak ruangnya cukup simple. Pada lantai atas hanya ditemukan 2 kamar, 1 toilet dan beranda sebagai tempat santai. Lantai bawah memiliki lebih banyak ruang untuk aktivitas keseharian.
Selain 1 kamar, ada toilet, dapur, area serbaguna dan ruang keluarga yang sekaligus berfungsi sebagai ruang tamu.
Halaman depan yang memanjang cocok dijadikan car port dan taman berbentuk L.
Sedangkan taman di halaman belakang dibuat memanjang.
5. Rumah Type 80 yang Halamannya Luas

Impian akan halaman yang super luas bisa kamu wujudkan dengan membangun rumah tipe 80 di atas lahan seluas 198 m2 seperti pada denah.
Luas halaman depan sekitar 600 x 600 yang bisa kamu tanami tumbuhan hijau dan bunga warna-warni. Bagian samping taman cukup ideal sebagai car port.
Halaman belakang bahkan lebih luas dan memiliki akses langsung ke halaman depan melalui space samping rumah.
Bagaimana dengan bagian dalam rumah? Kamu akan menemukan 1 kamar tidur utama, 2 kamar tidur anak, dapur yang terpisah, kamar mandi, ruang keluarga dan ruang makan tanpa partisi serta ruang tamu.
6. Rumah Type 80 Sederhana 1 Lantai

Denah rumah type 80 1 lantai yang sederhana merupakan favorit banyak orang. Desain hunian ini terdiri dari 1 kamar utama lengkap dengan kamar mandi dalam, 2 kamar anak, kamar mandi, dapur dan ruang keluarga yang hanya diberi partisi lemari dengan ruang tamu.
Sisa lahan di bagian depan rumah cukuk dibuat teras lebar, taman luas dan tempat parkir satu mobil.
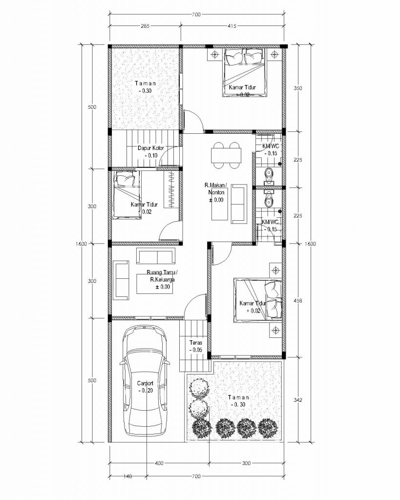
7. Rumah Type 80 Ukuran 16 x 7

Desain rumah tipe 80 yang memanjang ke belakang membutuhkan rancangan khusus sehingga dapat memaksimalkan fungsi ruang.
Pada denah rumah seluas 16 x 7 meter tersebut, ruang privasi seperti kamar tidur, kamar mandi dan dapur kotor ditata bersebelahan sehingga sisi samping ruangan terpakai dengan baik.
Bagian tengah dimanfaatkan untuk ruang keluarga. Ruang tamu terhubung dengan teras yang dibuat panjang menyesuaikan bentuk rumah.
Luas tanah 16 x 7 yang memanjang ini cukup mudah dibuat car port yang muat satu mobil.
Sayangnya, desain rumah ini mengorbankan keinginan penghuni rumah untuk memiliki halaman yang luas. Sisa lahan di bagian depan dan belakang hanya cukup untuk membuat taman seluas kurang lebih 10 m2.
Baca Juga :
Inspirasi denah rumah type 80 yang terbaik ini bisa memudahkan kamu untuk mewujudkan rumah impian seluas 80 m2. Seberapapun luas tanahnya, jika penataan ruang dilakukan dengan baik maka fungsionalitas ruang akan maksimal dan rumah pasti nyaman ditinggali.

