Saat ini terdapat beberapa ukuran kusen pintu yang bisa kamu gunakan sesuai dengan kebutuhan interior rumah. Kusen merupakan bagian frame untuk pintu dan jendela yang umumnya terbuat dari kayu.
Fungsi utama kusen adalah memberikan nilai estetika yang lebih menarik untuk sebuah bangunan.
Setiap jenis kusen memiliki ukuran yang berbeda, tergantung dari jenis dan ukuran daun pintu yang digunakan. Kamu perlu memperhatikannya dengan teliti agar kusen tampak indah.
9 Ukuran Kusen Pintu untuk Bangunan Rumah
Memahami ukuran kusen dengan baik merupakan informasi standar yang perlu kamu ketahui sebelum menentukan model dan juga materialnya.
Pintu merupakan bagian rumah yang paling penting karena digunakan sebagai tempat masuk dan keluarnya penghuni.
Pintu juga dijadikan sebagai gerbang yang menjaga keamanan rumah.
Agar terlihat bagus dan dapat berfungsi dengan baik, kusen harus dibuat sesuai dengan ukuran dan jenis ruangan. Berikut informasinya.
1. Ukuran Kusen Pintu Utama

Ketika menentukan ukuran kusen pintu utama, kamu perlu menghitung ketebalan pada bagian sisi kiri dan kanannya.
Umumnya ukuran kusen pada setiap sisi sebesar 6 cm. Jika dipadukan dengan ukuran daun jendela yang digunakan maka menjadi 12 cm.
2. Ukuran Pintu Utama 1 Daun

Pintu utama 1 daun merupakan jenis pintu yang sering digunakan oleh kebanyakan orang. Ukuran kusen yang cocok untuk jenis pintu ini adalah 6 cm untuk setiap sisi jika ukuran daun pintu sebesar 80 cm x 210 cm.
Biasanya ketika kamu ingin memilih jenis pintu dengan 1 daun, maka harus disesuaikan dengan desain hunian agar terlihat menarik.
Ukuran yang digunakan untuk membuat kusen jenis ini dengan memadukan daun jendela adalah sebesar 12 cm.
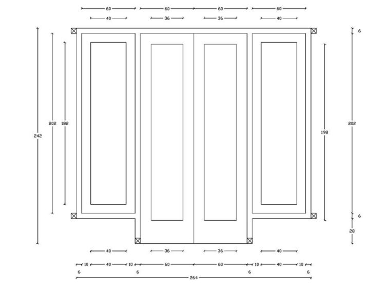
3. Ukuran Pintu Utama 2 Daun

Ukuran kusen pintu dan jendela minimalis harus diperhatikan dengan baik agar komposisi hunian terlihat menarik dan nyaman. Saat ini model pintu utama dengan 2 daun sedang banyak diminati.
Hal tersebut terjadi karena, penggunaan jenis pintu ini membuat hunian kamu terlihat lebih luas dan memberikan kemudahan kepada penghuni untuk memindahkan perabotan dan juga perlengkapan rumah saat dibutuhkan.
Ukuran daun pintu untuk jenis pintu ini adalah 60 cm x 200 cm untuk masing-masing sisi. Sama halnya untuk ukuran kusen 1 pintu, jenis pintu utama 2 daun membutuhkan ukuran kusen sebesar 6 cm untuk setiap sisi.
Namun kamu harus mengukurnya 2x lipat, karena jenis pintu ini terdiri dari 2 daun. Sedangkan untuk ukuran pada daun jendela adalah 12 cm.
4. Ukuran Pintu Aluminium Kamar Tidur

Salah satu ruangan terpenting pada sebuah rumah adalah kamar tidur. Ruangan ini harus didesain sebaik mungkin untuk memberikan kenyamanan serta kualitas tidur yang baik agar kamu bisa segar kembali setelah beristirahat.
Material yang banyak dipilih untuk pembuatan pintu adalah jenis aluminium karena lebih awet, kokoh dan memiliki harga yang terjangkau. Idealnya kamar tidur memiliki ukuran pintu sebesar 80 cm x 200 cm.
Jika ditambahkan dengan ukuran kusen dengan ketebalan 1-1.5 cm maka pintu kamar akan memiliki ukuran sekitar 92 cm x 220 cm. Kusen untuk pintu kamar memang idealnya hanya sekitar 1-1.5 cm agar terkesan lebih minimalis dan simple.
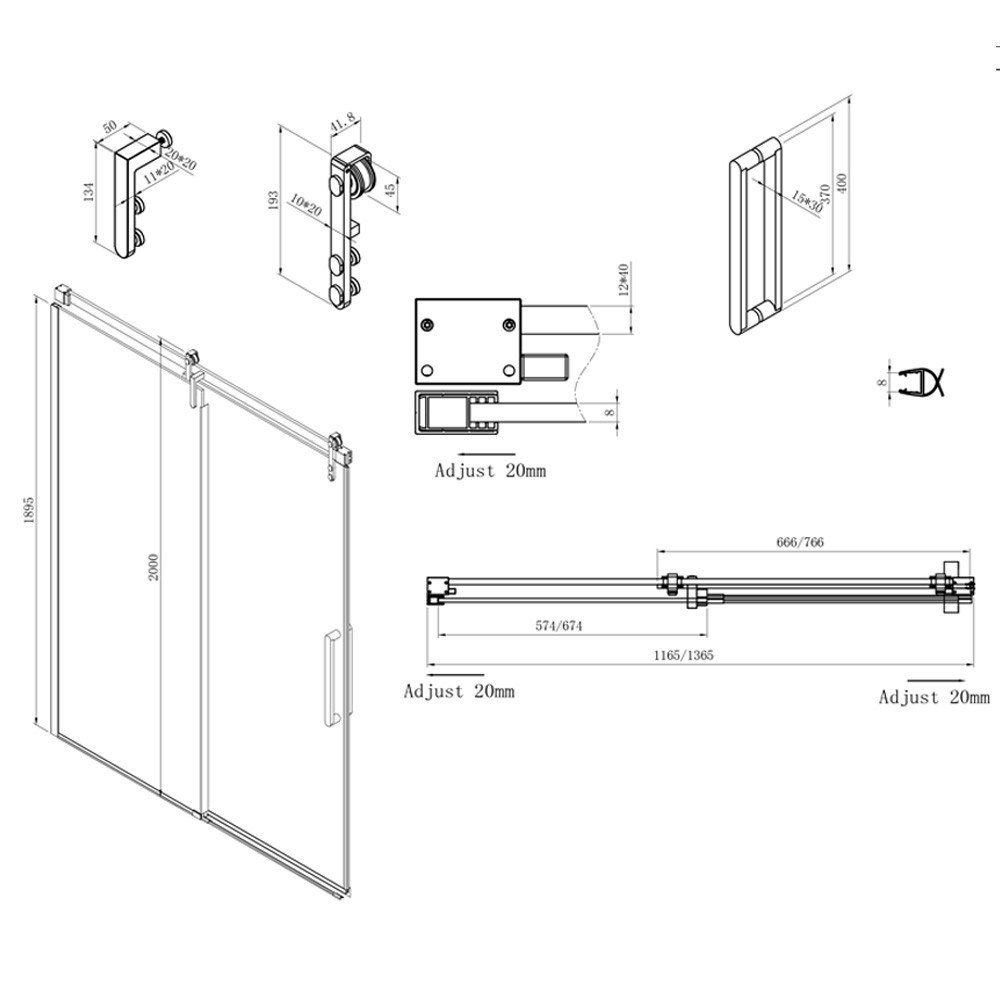
5. Ukuran Pintu Geser

Untuk menampilkan konsep rumah yang minimalis, kamu bisa menggunakan jenis pintu geser.
Konsep pintu seperti ini sangat cocok bagi kamu yang memiliki ruangan dengan ukuran terbatas karena pintu geser mampu mengurangi penggunaan lahan yang terlalu berlebihan.
Umumnya pintu geser digunakan pada beberapa ruangan seperti taman atau tempat bersantai. Pintu geser umumnya terbuat dari bahan aluminium yang bagian atas atau bawahnya dilengkapi dengan rel agar mudah dioperasikan.
Pintu geser memiliki ukuran sekitar 210 cm x 80 cm. Namun bagi kamu yang menggunakannya untuk bagian taman, bisa membuatnya dengan ukuran yang lebih besar agar pemandangan diluar bisa terlihat jelas.
Ukuran pintu geser bisa kamu sesuaikan dengan kebutuhan. Jika ditambahkan dengan ketebalan kusen sekitar 1 cm pada setiap sisi, maka pintu geser memiliki ukuran sebesar 220 cm x 92 cm.
6. Ukuran Pintu Lipat Dapur

Jenis pintu lipat biasanya digunakan untuk bagian garasi atau sekat untuk ruangan yang cenderung besar. Umumnya pintu lipat memiliki 3 bagian daun pintu yang bisa dilipat sesuai dengan kebutuhan.
Ukuran setiap daun pintu yang digunakan pada konsep pintu lipat ini tidak jauh berbeda dengan ukuran pintu utama yaitu sekitar 90 cm. Pintu lipat umumnya memiliki tinggi yang tidak lebih dari 3 meter.
Pintu lipat merupakan alternatif terbaik bagi pembatas ruangan. Di samping multifungsi, jenis pintu ini mampu meningkatkan nilai estetika sebuah rumah secara maksimal. Dengan begitu kamu bisa meningkatkan fungsional dari sebuah ruangan.
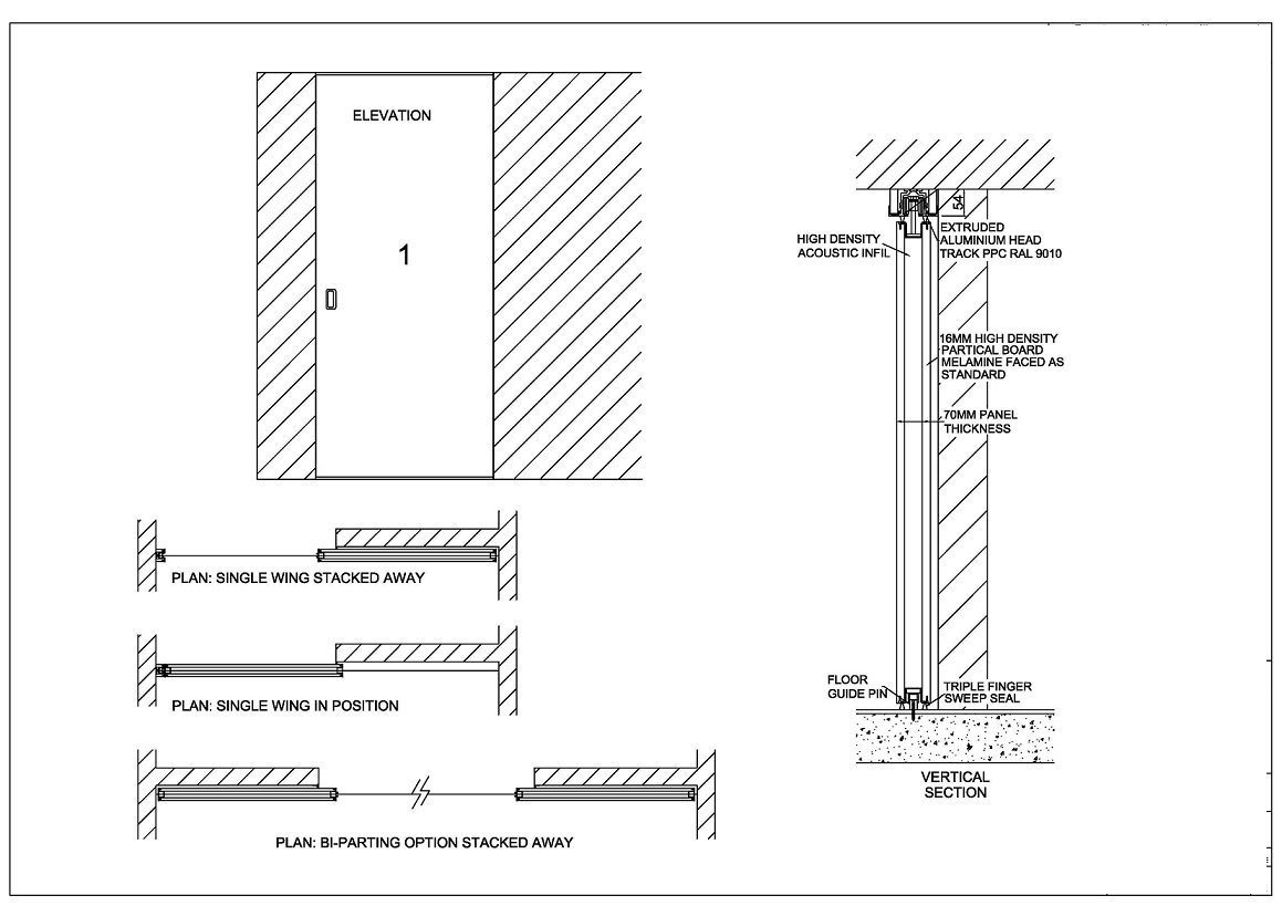
7. Ukuran Rel Pintu Sliding

Jenis pintu ini terdiri dari 2 tipe yaitu tipe U dan tipe M. Untuk rel pintu sliding tipe U, biasanya memiliki rel pada bagian atasnya.
Sedangkan tipe M dilengkapi rel pada bagian bawahnya. Kamu bisa memilih salah satu tipe yang sesuai dengan selera dan juga konsep rumah.
Menyesuaikan tata letak pintu jenis ini merupakan keharusan karena akan mempengaruhi suasana rumah secara signifikan. Umumnya pintu ini memiliki ukuran sekitar 2-3 meter.
8. Ukuran Pintu Garasi
Pintu garasi memiliki ukuran 3x lebih besar dibandingkan dengan ukuran pintu lainnya. Hal tersebut terjadi karena garasi membutuhkan ukuran yang lebih luas sehingga lebih mudah untuk memasukkan dan mengeluarkan mobil.
Apalagi jika kamu memiliki mobil lebih dari satu. Umumnya ukuran lebar untuk pintu garasi dengan 1 mobil adalah 2,7 meter. Ukuran tersebut sangat ideal dan membuat mobil kamu lebih aman dari goresan pintu.
Jika ingin membuat garasi untuk dua mobil kamu bisa menggunakan ukuran pintu 4-5 meter. Untuk tingginya, pintu garasi memiliki ukuran sekitar 2,1 meter.
Ini bukan ukuran yang mutlak karena bisa disesuaikan dengan kebutuhan kamu yang kamu dan berapa banyak mobil yang dimiliki.
9. Ukuran Kusen Pintu Kamar Mandi

Terdapat beberapa jenis material yang biasanya digunakan untuk pintu kamar mandi, yaitu PVC dan aluminium. Kedua material ini memiliki ukuran yang berbeda untuk diterapkan pada kamar mandi.
Jika menggunakan aluminium, kamu perlu membuat pintu kamar mandi dengan ukuran 40 cm x 180 cm. Umumnya bahan ini digunakan untuk rumah dengan konsep minimalis.
Namun untuk bahan PVC, kamu bisa membuatnya dengan ukuran 72 cm x 220 cm. Ini sudah termasuk dengan ketebalan kusen yang digunakan.
Baca Juga :
Daftar Harga Kusen Aluminium Terbaru 2023 untuk Pintu dan Jendela
Dengan memahami ukuran kusen pintu, kamu bisa lebih mudah untuk menyesuaikannya dengan kebutuhan. Sebuah rumah harus memiliki daya tarik tersendiri untuk menonjolkan karakteristik dari pemiliknya dan juga membuat ruangan terasa lebih nyaman dan fungsional.

